"Jeip" - 400m to the fjord

Large Image

1/38

"Jeip" - 400m to the fjord

Holiday village
4.0(3)

Property Type

Holiday village

Guests

4

Bedrooms

2

Bathrooms

1

IA

Hosted by Interhome A.

Member since October 2025

About this property

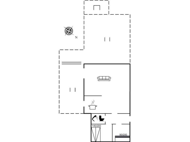
Single-family house, built in 1974. Private: property 1'975 m2, well-kept garden. Terrace (74 m2), barbecue, children's playground (slide, swing). In the house: washing machine. Parking at the house. Grocery 2.5 km. Golf course 16 km. The owner does not accept any youth groups.
  • Kitchen

    • Dishwasher
    • Microwave
  • Outdoor

    • Pool

Check availability

Past
Today
Booked
Available
SuMoTuWeThFrSa
SuMoTuWeThFrSa

Meet the host

IA

Interhome A.

Member since October 2025

37593

Listings

Languages:

English

Services:

No services

Interhome's other listings

Important house rules & info

    $ 0 /per night

    You won't be charged yet

    Is there a problem with this listing? Let us know.